Interstate Business Depot


Catoosa County, Georgia

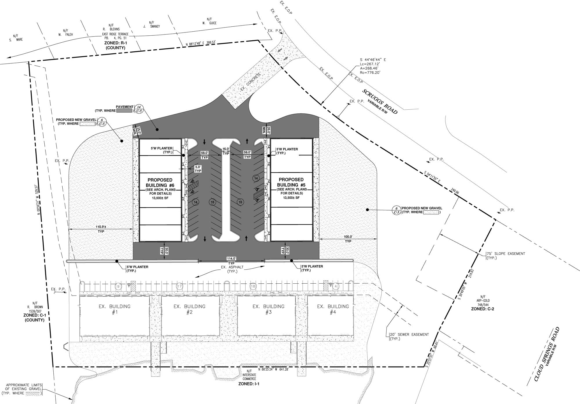
Interstate Business Depot is another quality development from Carlton Properties. This highly valued location at Exit 353 off of I-75 is offering direct access to the North Georgia area as well as less than a minute to the Tennessee/Georgia state line. It will consist of approximately 65,000 square feet of flex warehouse space divided into eight different buildings. The first building being an 8,000 square foot of modern design that can be divided into smaller 1,000, 2,000, 3,000 and 4,000 square foot units. The new buildings available starting in spring 2022 will be up 13,500 square feet.

All buildings with have the use of double loading docks with in ground standard tractor trailer loading docks and 24'' docks for box trucks, delivery vans and pickup trucks. Each unit will also have 12' x 14' grade level doors for ease of entry. With high efficient LED lighting throughout, power consumption can be held to a minimum for the Tenants.

With the first building being ready for occupancy during January/February of 2020, space is Leasing quick. Contact Chris Carlton for up to date information and availability.

c

Construction Day 1

Sign Going Up

Chris Carlton, Carlton Properties, LLC

carltonpropertiesllc@mindspring.com | 423-645-8067

4199 Cloud Springs Road, Ringgold, GA 30736

Copyright Ⓒ 2019 Carlton Properties, LLC. All rights reserved.